Rare Opportunity | Office | Free Hold  | High ROI

Al Jaddaf

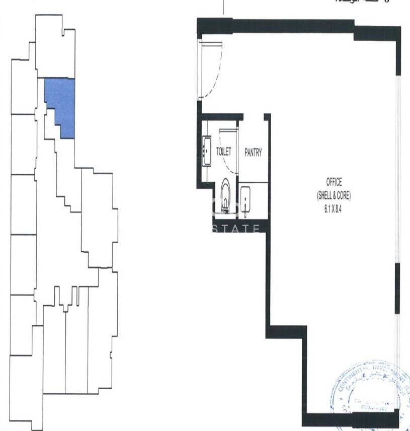
Property Summary

BenCo Real Estate L.L.C is delighted to offer this amazing commercial office space for sale in Boutique 23.

Property Details:

- Handover Date: 2026 Q3
- Size: 462 sq.ft

Discover an exceptional commercial opportunity in the vibrant Al Jaddaf neighborhood, a historic community along Dubai Creek known for its cultural richness.
This unfurnished shop, spanning 462 sq.ft, is available for sale at 820,000 AED, offering a strategic location in one of Dubai's most dynamic areas.
Perfectly positioned near Al Jaddaf Metro Station, the property provides excellent connectivity and access to key business districts. With covered parking and a building lobby, this shop presents an ideal investment in a neighborhood celebrated for its artistic heritage and continuous development.
Close to Dubai Healthcare City and cultural landmarks like the Mohammed Bin Rashid Library, the property benefits from Al Jaddaf's diverse ecosystem. Networked and conveniently located, this shop promises potential for businesses seeking a prime location in a thriving, culturally rich community.

BenCo Real Estate is a groundbreaking brokerage firm based in Dubai, poised to redefine the real estate landscape in the UAE. We recognized that the market needed more than just another real-estate company; it required a distinctive approach that sets us apart. Our mission is driven by the integration of technology and content creation, fostering enduring connections that enhance the real estate experience.
-1 Beds
462 Sq. Ft.

Facilities

Solar panels

Garden

Laundry

Cable tv

Internet

Security cameras

Jacuzzi

Elevator

Pool

Total Price

AED 820,000

Listed by property Agent

Get in Touch and
We’ll Help you Out.